Herbeckstrasse 58
Ruckergasse 27
Hotel Reither
Canivo (Schwesterngesellschaft)
-
Herbeckstrasse 58
Neue 2-4 Zimmer Wohnungen, je 62m²-120mm² im Eigentum.
Fertigstellung voraussichtlich 2022/2023
Status: Derzeit wird abgerissen -
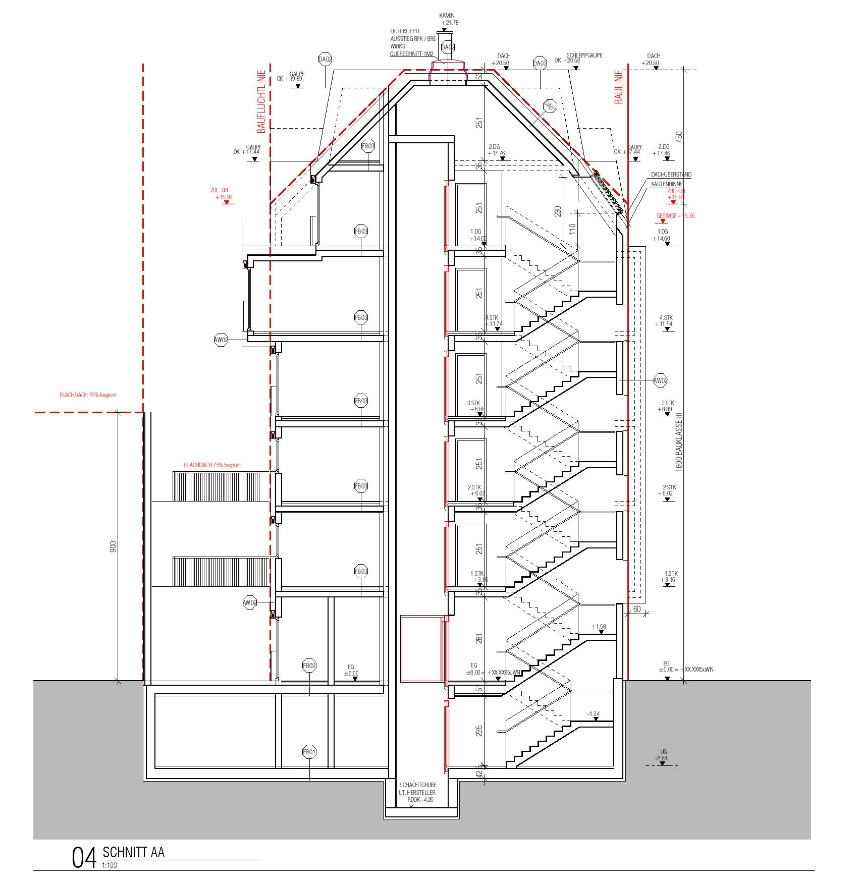
Ruckergasse 27
Die Wohnraumschaffung gehört, neben dem Straßenerhalt, zu den Hauptinteressen der Stadt Wien. Auch wir teilen dieses Interesse und befinden uns daher in der Planungs- und Genehmigungsphase einer Wohnhausanlage in der Ruckergasse 27, in 1120 Wien.
Die Wohnhausanlage soll in Summe ca. 1300m² an Büro- und Wohnfläche, aufgeteilt auf 19 Parteien bieten.
Die Fertigstellung wird im Frühjahr 2019 erwartet.
Weitere Infos und Bilder folgen
Detailplan 1
Detailplan 1
-
Hotel Reither
Das im Jahre 1981 errichtete Hotel Reither gehört mit zu den schönsten Projekten der Heydco Ges.m.b.H.
Mit über 50 Zimmern und 100 Betten, einem hauseigenen Pool mit Sauna und einer Garage, übernahm es die Holding im Jahre 2010 und investierte seither ständig in die Anlage, um den Wert und das Ansehen zu steigern.
Mit Erreichen des Ziels wurde die Anlage an einen neuen Eigentümer verkauft, welcher das Hotel bis heute erfolgreich weiter führt. -
Canivo (Schwesterngesellschaft)
Unter dem Namen Canivo ist die im Jahre 1971 gegründete und im Iran tätige Schwesterngesellschaft im Bereich Tunnel- und Brückenbau tätig. Die Arbeiten der Firma begannen im Jahre 1974 mit dem Management von 4 Ingenieuren, welche ihren Abschluss an der Technischen Universität in Teheran absolviert haben. Die Früchte der über 45jährigen Firmengeschichte im gesamten Land, im Meer, auf dem Wasser, im Straßen- und Brückenbau, im Tunnel- oder Gleisbau, sowie beim Bau unter widrigsten Verhältnissen, lassen sich heute gut präsentieren: Über 30 nationale Projekte auf höchster Qualität, welche bis heute erfolgreich abgeschlossen wurden und zahlreiche TOP Nominierungen im Bereich Transport, Hydraulik, Konstruktion, sowie Installationen und Equipment.
































































